香江別墅
更新時間:2017-05-31
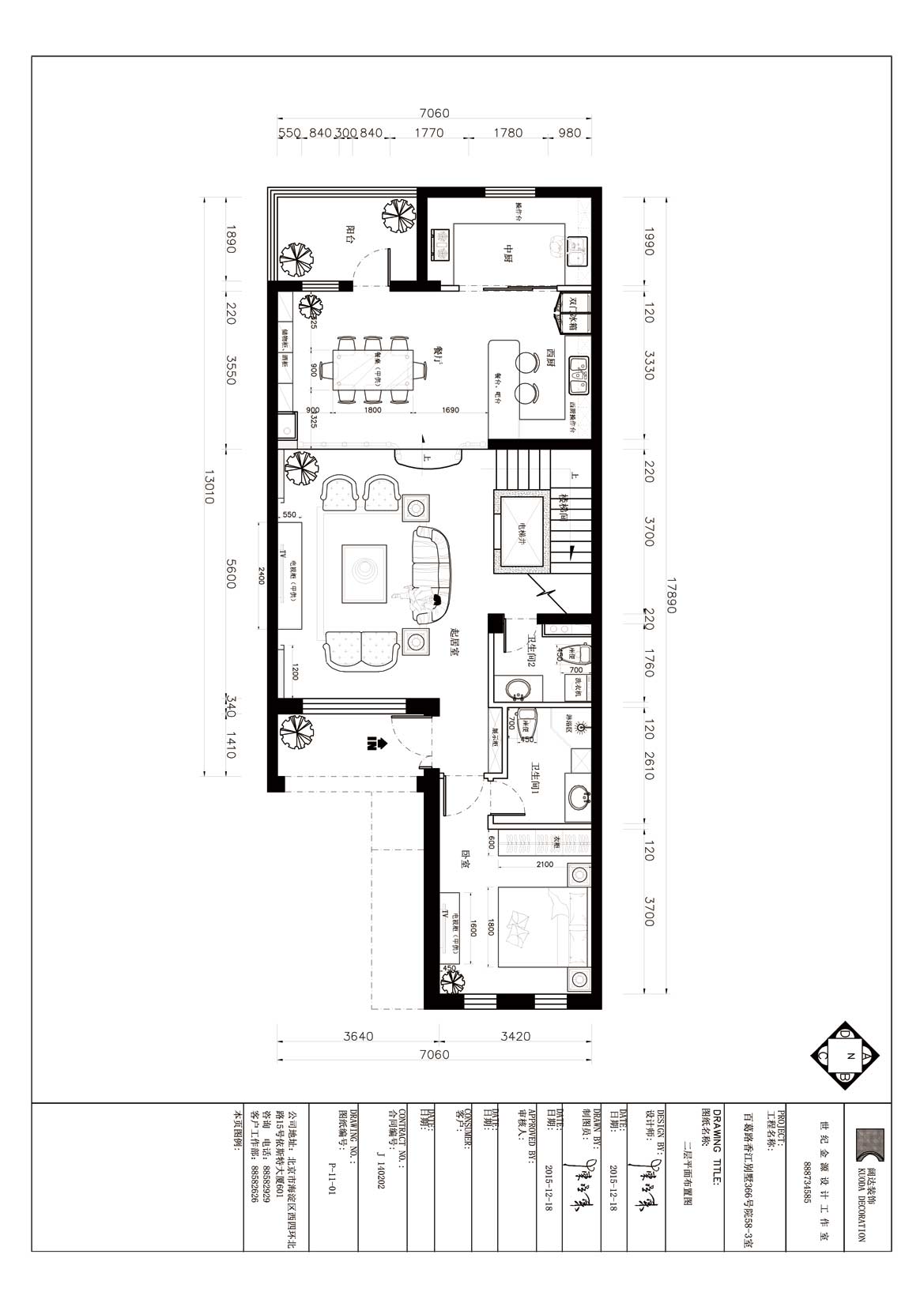
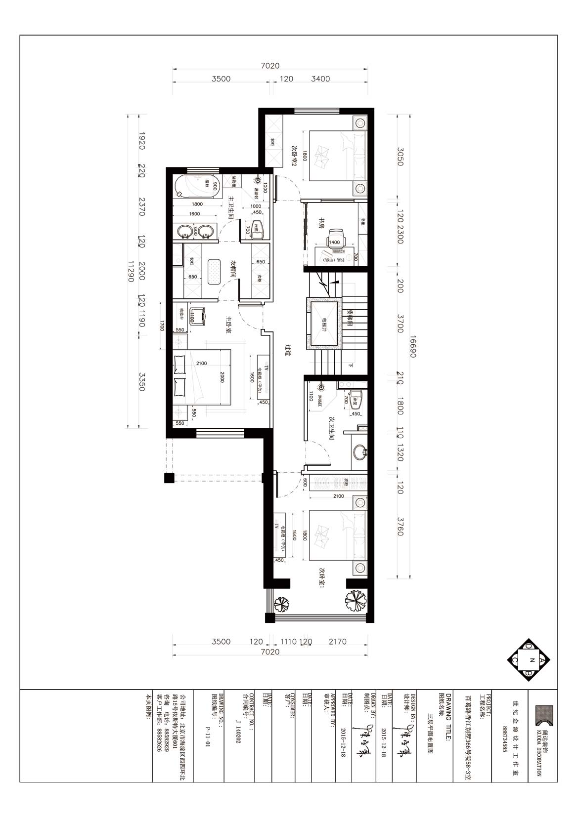
| 設計風格 | 中式 | 戶型案例 | 5個臥室4個衛生間2個客廳 | 案例面積 | 360 |
|---|---|---|---|---|---|
| 樓盤名稱 | 香江別墅 | 所在城市 | 北京 | 案例造價 | 50萬 |
| 設計師 | |||||

案例說明:
本在風格設計上結合客戶的喜好及習慣以歐式簡約設計和中式設計為主,配以溫馨的色調,古樸的家具以及賦予多變的頂面造型及燈光設計營造業主向往的舒適、自由、大氣的空間。
同風格案例:更多>>
同面積案例:
| 客戶服務熱線: | 010-84580331 | 加盟咨詢熱線: | 010-82272748 | (工作日:9:00-18:00) |
預約加盟
預約裝修
客戶服務
返回頂部
闊達標準工程,一看就不同!
全國累計已有一百余家加盟公司
免費獲得家裝服務
全國各地業主都在申請!
闊達裝飾竭誠為您服務!
| 設計風格 | 中式 | 戶型案例 | 5個臥室4個衛生間2個客廳 | 案例面積 | 360 |
|---|---|---|---|---|---|
| 樓盤名稱 | 香江別墅 | 所在城市 | 北京 | 案例造價 | 50萬 |
| 設計師 | |||||

本在風格設計上結合客戶的喜好及習慣以歐式簡約設計和中式設計為主,配以溫馨的色調,古樸的家具以及賦予多變的頂面造型及燈光設計營造業主向往的舒適、自由、大氣的空間。